Bungalow-górny 70m2 5km od plaży na sprzedaż
Pow. całkowita
Ilość sypialni
Ilość łazienek
Zapisz
18° Alicante
18° Alicante
Ta oferta jest nieaktualna, sprawdź aktualne oferty
Pow. całkowita
Ilość sypialni
Ilość łazienek
Zapisz
osiedle zamknięte
preinstalacja klimatyzacji
preinstalacja alarmu
ogród komunitarny
prywatne solarium
technologia Smart Home
balkon / Taras
parking
basen wspólny
elektryczne rolety
widok na strefy zielone
Ładna okolica
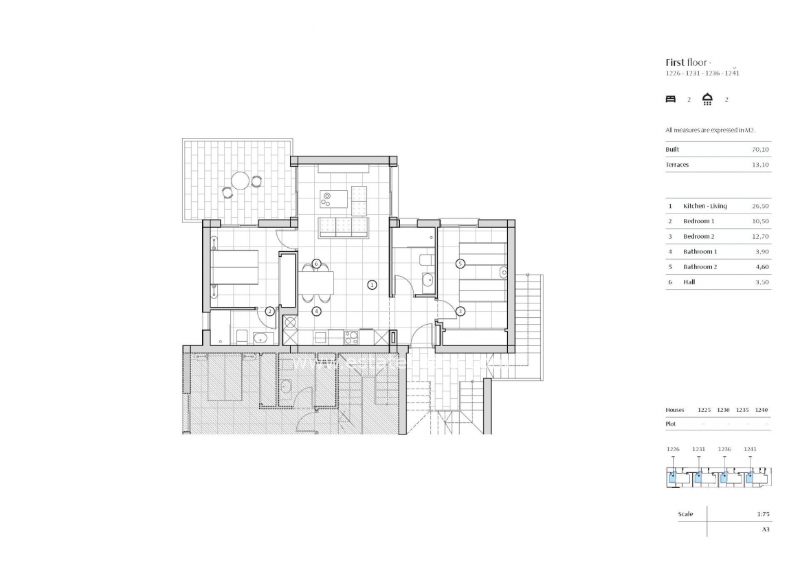
Kompleks mieszkalny składający się z bungalowów i domów w La Finca Golf. Nowoczesne bungalowy mają 2 sypialnie, 2 łazienki, kuchnię na otwartym planie zintegrowaną z częścią dzienną łączącą sypialnie, łazienki i taras. Bungalowy na parterze mają tarasy i ogrody, bungalowy na najwyższym piętrze mają tarasy i solaria na piętrze. Orientacja południowa zapewnia naturalne oświetlenie o każdej porze roku i naturalne ogrzewanie od świtu do zachodu słońca, co zmniejsza zużycie energii. Otwarte nieruchomości koncepcyjne z oknami i przesuwanymi drzwiami umożliwiają wentylację krzyżową i wpuszczają światło. Nieruchomości są usytuowane w taki sposób, że światło może dostać się wszędzie, ale jednocześnie oferuje świeże i przytulne zakątki. Nowa inwestycja ma miejsce na niesamowitej działce, na której domy zostały zrealizowane ze starannym projektem i dużymi przestrzeniami, aby osiągnąć maksymalny komfort. Jego projekt koncentruje się na komforcie i dobrym samopoczuciu mieszkańców i łączy w sobie współczesny styl i śródziemnomorski charakter, dziedzicząc tradycyjną morfologię z wykorzystaniem kamieni na elewacji i zadaszeniach. Kuchnie będą dostarczane w pełni umeblowane z aktualnym projektem mebli wysokich i niskich o dużej pojemności. Szafki dolne są wykonane z białego matowego laminatu, a górne z drewna melaminowego z teksturą na kolumnach. Półukryty profil uchwytu z systemem gola*. Blat w obszarze roboczym i półwyspie Quarz Compac Blanco Luna lub podobny. Opancerzone drzwi wejściowe z lakierowanym na biało wykończeniem skrzydła wewnętrznego i brązową fakturą na skrzydle zewnętrznym. Wizjer optyczny i zamek bezpieczeństwa. Lakierowane na biało drzwi wewnętrzne z frontem z trzema listwami i prostokątnymi uchwytami ze stali nierdzewnej. Wbudowane szafy z białymi drzwiami przesuwnymi. Okna i drzwi przesuwne z brązowej stolarki aluminiowej z teksturowanym wykończeniem. Okna uchylno-rozwierane w łazienkach, z matowym szkłem i ręcznymi żaluzjami. Elektryczne i zmotoryzowane żaluzje, wykończone brązowym teksturowanym aluminium. Wszystkie rolety są podłączone do systemu automatyki domowej i są zsynchronizowane z zamykaniem i otwieraniem oraz mogą być obsługiwane za pomocą aplikacji. Specjalne podwójne szyby z kontrolą słoneczną i niską emisyjnością, aby maksymalnie wykorzystać naturalne światło i zaoszczędzić na kosztach energii. Optymalny wygląd estetyczny, wyjątkowy kolor i minimalne odbicia. Certyfikat energetyczny klasy A Properties oferuje wysoki poziom certyfikacji energetycznej. Jest to możliwe dzięki izolacji termicznej dachów i ścian, stolarce aluminiowej z podwójnymi szybami oraz instalacji 5 paneli słonecznych w każdym bloku Domy są wyposażone w gniazda elektryczne i telekomunikacyjne wymagane przez przepisy elektrotechniczne niskiego napięcia. Domofon do komunikacji między domem a głównym wejściem. Zaawansowany system automatyki domowej do sterowania roletami z napędem silnikowym i trzema punktami świetlnymi. Mechanizmy serii Legrand Valena Next, które można podłączyć do systemu automatyki domowej. Wstępna instalacja klimatyzacji: centralna lub typu split w zależności od modelu. W pełni wyposażony system alarmowy z jednym czujnikiem na pokój, panelem dotykowym i syreną. Nowa inwestycja znajduje się w La Finca Golf. Znajduje się obok pierwszej linii golfa, naprzeciwko 11 toru wodnego na polu golfowym La Finca, jednego z najbardziej charakterystycznych kompleksów w południowo-wschodniej Hiszpanii i powszechnego schronienia dla miłośników golfa. Położony zaledwie 4 minuty od Algorfy, na południowym wybrzeżu Costa Blanca, ten kompleks z krytym parkingiem, wspólnym basenem i ogrodem jest idealnym miejscem dla tych, którzy chcą cieszyć się śródziemnomorskim stylem życia: Bliskość plaży, golfa i gór, w otoczeniu spokoju, ale z dostępem do wszelkiego rodzaju usług i terenów rekreacyjnych. Kilka minut od najpiękniejszych plaż południowego wybrzeża Costa Blanca i miejsc o wyjątkowej urodzie, takich jak Laguna Rosa de Torrevieja lub wydmy Guardamar del Segura. Bliskość i łatwy dostęp do autostrady AP-7 i głównych dróg krajowych łączą kompleks z licznymi miastami na Costa Blanca, takimi jak Orihuela, Cartagena, Elche, Murcja i Alicante. Lotniska w Alicante i Murcji znajdują się niecałe 30 minut jazdy samochodem i oferują połączenia z głównymi europejskimi stolicami.
Informacja podana tutaj jest orientacyjna i nie stanowi części żadnej umowy. Oferta może zostać zmieniona lub wycofana bez uprzedniego powiadomienia. Ceny nie obejmują kosztów zakupu.
Zapisz
Powierzchnia
Ilość sypialni
Ilość łazienek
Podobne ogłoszenia
ZAPISZ SIĘ NA WARSZTATY W HISZPANII
Zapraszam na warsztaty do Hipszanii
Usługi dodatkowe
Oferujemy dla Państwa wszelkie usługi dodatkowe związane z nieruchomościami
Kontakt
Zapraszamy do kontaktu!
Chętnie odpowiemy na Wasze pytania :)
Calle Gigantes y Cabezudos 3
03189 Orihuela Costa, Villamartin Golf
Znajdziesz nas również tutaj