Dom-/-Willa 144m2 5km od plaży na sprzedaż
Pow. całkowita
Ilość sypialni
Ilość łazienek
Zapisz
17° Alicante
17° Alicante
Ta oferta jest nieaktualna, sprawdź aktualne oferty
Pow. całkowita
Ilość sypialni
Ilość łazienek
Zapisz
preinstalacja klimatyzacji
ogród
prywatne solarium
oświetlenie wewnętrzne
parking
elektryczne rolety
NOWE WILLE W VISTABELLA GOLF RESORT
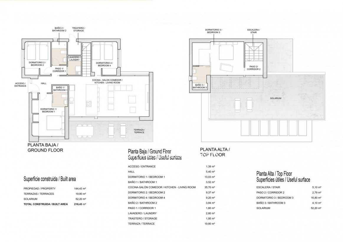
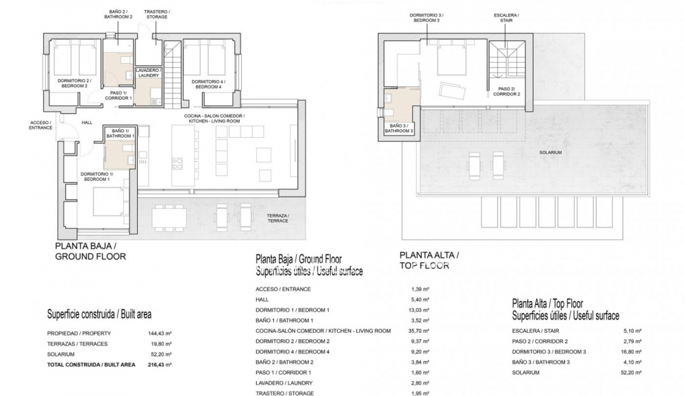
Luksusowe wille zbudowane przez 2 piętra znajduje się w Vistabela Golf Resort, między San Miguel i Los Montesinos w Orihuela Costa. Wille z 4 sypialniami, 3 łazienkami, salonem na otwartym planie z kuchnią, dużym solarium, ogrodem z parkig i miejscem na prywatny basen. Opcje prywatnego basenu za dodatkową opłatą.
Vistabella Golf Resort to strzeżony kompleks który oferuje 18-dołkowe pole golfowe, korty padel, bowling greens, supermarket i duży wybór barów i restauracji. Piaszczyste plaże La Mata i Guardamar del Segura znajduje się tylko 20 min jazdy od kompleksu. Lotnisko w Alicante oddalone jest o 40 minut drogi, a lotnisko w Murcji o 1 godzinę drogi.
Informacja podana tutaj jest orientacyjna i nie stanowi części żadnej umowy. Oferta może zostać zmieniona lub wycofana bez uprzedniego powiadomienia. Ceny nie obejmują kosztów zakupu.
Zapisz
Powierzchnia
Ilość sypialni
Ilość łazienek
ZAPISZ SIĘ NA WARSZTATY W HISZPANII
Zapraszam na warsztaty do Hipszanii
Usługi dodatkowe
Oferujemy dla Państwa wszelkie usługi dodatkowe związane z nieruchomościami
Kontakt
Zapraszamy do kontaktu!
Chętnie odpowiemy na Wasze pytania :)
Calle Gigantes y Cabezudos 3
03189 Orihuela Costa, Villamartin Golf
Znajdziesz nas również tutaj