Bungalow-dolny 59m2 200m od plaży na sprzedaż
Pow. całkowita
Ilość sypialni
Ilość łazienek
Zapisz
27° Alicante
27° Alicante
Pow. całkowita
Ilość sypialni
Ilość łazienek
Zapisz
preinstalacja klimatyzacji
oświetlenie zewnętrzne
oświetlenie wewnętrzne
balkon / Taras
elektryczne rolety
w pobliżu morza
Nowoczesne bungalowy kilka kroków od plaży Las Higuericas w Torre de la Horadada
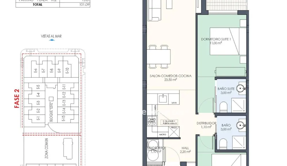
Do wyboru są nowoczesne bungalowy na parterze z prywatnymi ogrodami lub bungalowy na najwyższym piętrze z przestronnymi solariami. Każda nieruchomość z 2 sypialniami została zaprojektowana z myślą o współczesnej estetyce i funkcjonalności. Wyposażenie obejmuje: szafy wnękowe z oświetleniem LED, wstępnie zainstalowana klimatyzacja kanałowa, elektryczne żaluzje i oświetlenie zewnętrzne, aerotermiczne podgrzewacze wody. Każdy bungalow posiada prywatne miejsca parkingowe.
Zamknięty kompleks wyposażony we wspólny basen i tereny zielone.
Doskonała lokalizacja - zaledwie 150 metrów od plaży Las Higuericas w Torre de la Horadada. Znane ze złotego piasku i krystalicznie czystej wody, to nadmorskie miasteczko oferuje idealne połączenie relaksu i nowoczesnych udogodnień. Niezależnie od tego, czy szukasz spokojnego odosobnienia, czy tętniącego życiem stylu życia, Torre de la Horadada stanowi idealne miejsce na wymarzony dom.
Informacja podana tutaj jest orientacyjna i nie stanowi części żadnej umowy. Oferta może zostać zmieniona lub wycofana bez uprzedniego powiadomienia. Ceny nie obejmują kosztów zakupu.
Zapisz
Powierzchnia
Ilość sypialni
Ilość łazienek
Od 334 000 €
Podobne ogłoszenia
ZAPISZ SIĘ NA WARSZTATY W HISZPANII
Zapraszam na warsztaty do Hipszanii
Usługi dodatkowe
Oferujemy dla Państwa wszelkie usługi dodatkowe związane z nieruchomościami
Kontakt
Zapraszamy do kontaktu!
Chętnie odpowiemy na Wasze pytania :)
Calle Gigantes y Cabezudos 3
03189 Orihuela Costa, Villamartin Golf
Znajdziesz nas również tutaj