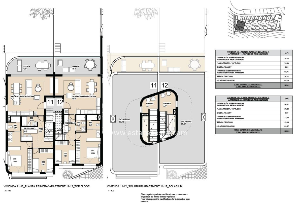
Bungalow-górny 151m2 La Mata 300m od plaży na sprzedaż
Pow. całkowita
Ilość sypialni
Ilość łazienek
Zapisz
19° Alicante
19° Alicante
Pow. całkowita
Ilość sypialni
Ilość łazienek
Zapisz
preinstalacja klimatyzacji
prywatne solarium
oświetlenie wewnętrzne
parking
widok na morze
meble kuchenne
Nowe bungalowy z widokiem na morze w La Mata, zaledwie 300 metrów od plaży!
Osiedle wyróżnia się elegancką śródziemnomorską architekturą z awangardowym akcentem. Nieruchomości charakteryzują się wysokiej jakości wykończeniem, przestronnymi pokojami i dużą ilością naturalnego światła, osiągając idealną równowagę między designem a funkcjonalnością. Do wybory bungalowy na parterze z dużym prywatnym ogrodem i wystarczającą ilością miejsca na prywatny basen. Obejmują one również półpiwnicę z możliwością dodania dodatkowych sypialni. Bungalowy na najwyższym piętrze z dużym balkonem oraz prywatnym solarium ze spektakularnymi widokami na morze. Podziemne miejsce parkingowe wliczone w cenę każdej nieruchomości. Osiedle oferuje wspólny basen bez krawędzi.
Ta ekskluzywna inwestycja znajduje się w La Mata, w jednym z najbardziej poszukiwanych obszarów Costa Blanca. Zaledwie 300 metrów od plaży, osiedle to oferuje wyjątkowe naturalne otoczenie z panoramicznym widokiem na morze i łatwym dostępem do wszystkich niezbędnych udogodnień. La Mata to tętniąca życiem okolica o wyjątkowym uroku, otoczona promenadami, restauracjami, kawiarniami i supermarketami, co czyni ją idealnym miejscem zarówno do całorocznego życia, jak i cieszenia się drugim domem nad morzem.
Informacja podana tutaj jest orientacyjna i nie stanowi części żadnej umowy. Oferta może zostać zmieniona lub wycofana bez uprzedniego powiadomienia. Ceny nie obejmują kosztów zakupu.
Zapisz
Powierzchnia
Ilość sypialni
Ilość łazienek
Od 595 000 €
Podobne ogłoszenia
ZAPISZ SIĘ NA WARSZTATY W HISZPANII
Zapraszam na warsztaty do Hipszanii
Usługi dodatkowe
Oferujemy dla Państwa wszelkie usługi dodatkowe związane z nieruchomościami
Kontakt
Zapraszamy do kontaktu!
Chętnie odpowiemy na Wasze pytania :)
Calle Gigantes y Cabezudos 3
03189 Orihuela Costa, Villamartin Golf
Znajdziesz nas również tutaj