Dom-/-Willa 175m2 5km od plaży na sprzedaż
Pow. całkowita
Ilość sypialni
Ilość łazienek
Zapisz
23° Alicante
23° Alicante
Pow. całkowita
Ilość sypialni
Ilość łazienek
Zapisz
ogród
oświetlenie wewnętrzne
balkon / Taras
sprzęt AGD
meble kuchenne
wbudowane szafy
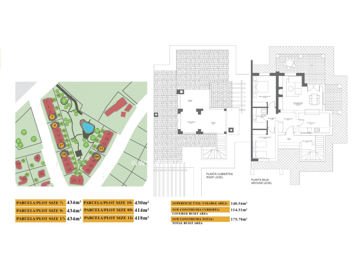
Odkryj wyjątkową posiadłość w sercu słonecznej Murcji! Prezentujemy gotowy do zamieszkania dom w prestiżowym kompleksie mieszkalnym w Fuente Álamo. To idealne połączenie rustykalnego uroku z najwyższą jakością materiałów, zaprojektowane z myślą o maksymalnym komforcie mieszkańców.
Charakterystyka nieruchomości:
Inwestycja znajduje się na terenie prywatnego, zamkniętego osiedla. Mieszkańcy mogą cieszyć się pięknie zagospodarowanymi ogrodami oraz dużymi, wspólnymi basenami, które są idealnym miejscem do wypoczynku w gronie sąsiadów.
Informacja podana tutaj jest orientacyjna i nie stanowi części żadnej umowy. Oferta może zostać zmieniona lub wycofana bez uprzedniego powiadomienia. Ceny nie obejmują kosztów zakupu.
Zapisz
Powierzchnia
Ilość sypialni
Ilość łazienek
Od 242 000 €
Podobne ogłoszenia
ZAPISZ SIĘ NA WARSZTATY W HISZPANII
Zapraszam na warsztaty do Hipszanii
Usługi dodatkowe
Oferujemy dla Państwa wszelkie usługi dodatkowe związane z nieruchomościami
Kontakt
Zapraszamy do kontaktu!
Chętnie odpowiemy na Wasze pytania :)
Calle Gigantes y Cabezudos 3
03189 Orihuela Costa, Villamartin Golf
Znajdziesz nas również tutaj